一、概述
FZW32-40.5RD/1250-25型户外高压隔离真空负荷开关-组合电器,适用于额定电压40.5kV、额定电流125A、三相交流50Hz的供电网络中。
二、使用环境条件
周围空气温度:上限+40℃下限-30℃, 日温差不超过32K;
海拔不超过2000m;
风压不超过700Pa(相当于风速34/s);
空气污秽程度:按GB5585之4.2条中规定的Ⅳ级;
地震烈度不超过8度;
覆冰厚度不超过10mm
三、型号及含义

四、主要技术参数
序号 | 项目 | 单位 | 参数 | |
1 | 额定电压 | kV | 40.5 | |
2 | 额定频率 | Hz | 50 | |
3 | 额定电流 | A | 1250 | |
4 | 额定有功负载开断电流 | A | 1250 | |
5 | 额定闭环开断电流 | A | 1250 | |
6 | 5%额定有功负载开断电流 | A | 62.5 | |
7 | 额定电缆充电开断电流 | A | 25 | |
8 | 额定空载变压器开断容量 | kVA | - | |
9 | 额定开断电容量组电流 | A | - | |
10 | 1min工频耐压 | 真空断口 | kV | 68 |
| 相间、相对地 | kV | 95 | ||
| 隔离断口 | kV | 110 | ||
11 | 雷电冲击耐压(峰值) | 相间、相对地 | kV | 185 |
| 隔离断口 | kV | 215 | ||
12 | 4S额定短时耐受电流(热稳定) | kA | 25 | |
13 | 额定峰值耐受电流 | kA | 63 | |
14 | 额定短路关合电流(峰值) | kA | 63 | |
15 | 机械寿命 | 次 | 10000 | |
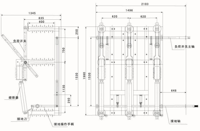
五、产品主体机构图




